Trilocale in vendita

Milano, Via Rezzonico - XXII Marzo
€ 620.000
3 locali 3 locali
90 Mq 90 Mq
1 bagno 1 bagno

Trilocale in vendita

Milano, Via Rezzonico - XXII Marzo

Descrizione annuncio

CONTATTACI SU WhatsApp AL NUMERO 02.83.55.06.56

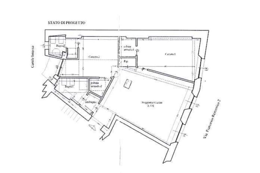
Via Francesco Rezzonico – piano terzo

In Via Francesco Rezzonico, al terzo piano di uno stabile inserito in un contesto residenziale ben collegato, proponiamo in vendita un appartamento da ristrutturare, ideale per chi desidera personalizzare gli ambienti e valorizzare al massimo il potenziale dell’immobile.

L’abitazione è oggi composta da ingresso, soggiorno, cucinotto con tinello e balcone, oltre a una camera matrimoniale. La distribuzione interna consente però una facile trasformazione in trilocale con doppi servizi, soluzione particolarmente interessante per famiglie, professionisti o per chi cerca un investimento in una zona in continua evoluzione.

Uno dei punti di forza dell’immobile è il contesto urbano: la via si trova in un’area strategica di Porta Vittoria, ben servita dai mezzi e vicina a servizi, attività commerciali e collegamenti rapidi con il resto della città. A valorizzare ulteriormente la zona vi è la presenza del Parco 8 Marzo, nuovo polmone verde inaugurato nell’area di Porta Vittoria come parte del processo di riqualificazione dell’ex scalo ferroviario.

Elemento di grande interesse è anche il progetto BEIC – Biblioteca Europea di Informazione e Cultura, in corso nell’area dell’ex scalo di Porta Vittoria: un importante polo culturale e urbano destinato a incidere positivamente sull’attrattività del quartiere nei prossimi anni. La sede BEIC sorgerà infatti in posizione strategica nell’area di Porta Vittoria, collegata al passante ferroviario e alla linea M4.

Si tratta quindi di una soluzione con ottime prospettive di valorizzazione, perfetta per chi cerca una casa da modellare secondo le proprie esigenze in un quartiere milanese dinamico, verde e sempre più centrale.

Mostra tutto

Nelle vicinanze

Trasporto pubblico Trasporto pubblico
Porta Romana
Porta Romana
1,8 Km
Lodi T.I.B.B.
Lodi T.I.B.B.
1,8 Km
stazione di Milano Porta Vittoria
stazione di Milano Porta Vittoria
300 m
stazione di Milano Dateo
stazione di Milano Dateo
810 m
Piazza Emilia
Piazza Emilia
300 m
Ricariche auto elettriche Ricariche auto elettriche
A2A Isola Digitale Largo Marinai D'Italia
550 m
A2A Corso Indipendenza
900 m
A2A Isola Digitale Cinque Giornate
1,1 Km
BeCharge Milano Botta
1,4 Km
A2A Corso Monforte
1,6 Km
Scuole Scuole
Scuola elementare Cinque Giornate
140 m
Liceo Scientifico Statale Renato Donatelli
340 m
Scuole
660 m
Istituto comprensivo "Tommaso Grossi"
1,0 Km
Scuola elementare Nolli Arquati
1,1 Km
Farmacia Farmacia
Antica Farmacia del Verziere
220 m
Farmacia Moizio
300 m
San Camillo
420 m
Farmacia Toschi
630 m
Farmacia Fiore
660 m
Ospedali Ospedali
Ospedale Macedonio Melloni
610 m
Centro Medico Milano Tree Of Life S.r.l.
1,5 Km
Ospedali
1,7 Km
Istituto Nazionale dei Tumori
1,7 Km
Casa di cura "Città di Milano"
1,9 Km
Supermercati Supermercati
Esselunga
100 m
Bennet
470 m
Supermercati
510 m
Pam
650 m
Carrefour Market
680 m
Negozi Negozi
Lucy
200 m
Leon
220 m
Negozi
260 m
Dolci magie di pane
380 m
Bollani
560 m
Bar Bar
feelgood
140 m
Bar Gusto
240 m
Boom
350 m
Bar
370 m
Bachelite cLab
390 m
Ristoranti Ristoranti
Ci
170 m
EN
250 m
Sapore della Grecia
370 m
L'essenza di Mina
390 m
Pizzeria San Paolo
390 m
Mostra tutto

Caratteristiche

Rif.:
61192548
Piano:
3 di 6 con ascensore (Piano medio)
Balconi:
1
Camere da letto:
1
Arredamento:
Assente
Condizionamento:
Assente
Mostra tutto
Prezzo Prezzo
€ 620.000
Rata mutuo Rata mutuo
€ 2.957 / mese
Spese annue Spese annue
€ 2.400
Proponi il tuo prezzoProponi il tuo prezzo

Classe Energetica

E
E
E
E
E
E
E
E
E
EP globale non rinnovabile:
123.82 kW h/m² anno
EP globale rinnovabile:
0.00 kW h/m² anno
Anno di costruzione:
1930
Riscaldamento:
Centralizzato
Tipo impianto:
A radiatori
Tipo alimentazione:
Metano

Ti interessa visionare l'immobile?

Fissa un appuntamento  Fissa un appuntamento

Richiedi informazioni

Clicca su Leggi per aprire l'informativa
* Questi campi sono obbligatori

Calcola il tuo mutuo

Semplice e senza impegno
Anticipo

( % )
Mutuo

( % )

pochi semplici passi

inserisci i tuoi dati
Questionario completato
Grazie per aver richiesto un appuntamento senza impegno con un nostro Consulente del Credito e Assicurativo.

Hai inserito correttamente tutti i dati necessari e a breve riceverai una e-mail con un link da convalidare per inviare i tuoi dati.
Affiliato
Mercurio Case Srl
Corso XXII Marzo, 63 20123 Milano (MI)

Il nostro staff


  • Felice Papa
    Responsabile

  • Andrea Casiroli
    Responsabile

  • Claudia Ciavattella
    Responsabile

  • Francesca Liuzzi
    Coordinatrice

  • Luigi Miccio
    Responsabile

  • Nicola Emma
    Affiliato
Corso XXII Marzo, 63 20123 Milano (MI)
Zona: Corso XXII Marzo - Porta Vittoria - Piazza Emilia
Mostra su mappa
Orari: Da Lunedì a Venerdì orario continuato 09.00 - 20.00 Sabato orario continuato 09.00 - 13.00 Domenica su appuntamento
Affiliato
Mercurio Case Srl
Corso XXII Marzo, 63 20123 Milano (MI)

2026 Tecnocasa Franchising S.p.A. - P. IVA 08365160152 - Via Monte Bianco 60/A 20089 Rozzano (MI). Ogni agenzia ha un proprio titolare ed è autonoma. Privacy policy | Policy utilizzo | Cookie policy